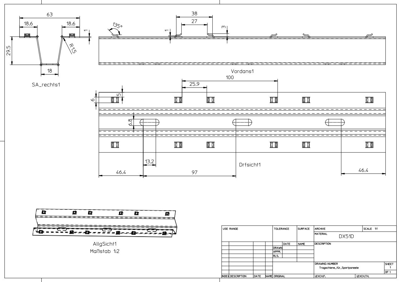
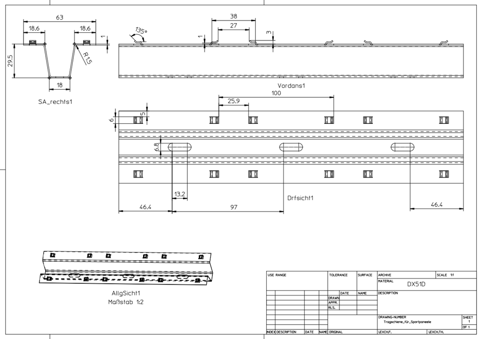
Speziell entwickelt für Sporthallen und vandalismusgefährdete Bereiche:

Die extrem strapazierfähigen, robusten, ballwurfsicheren, abgehängten ORIGINAL DOBNER Sport-Paneeldecken aus hochfestem Stahl