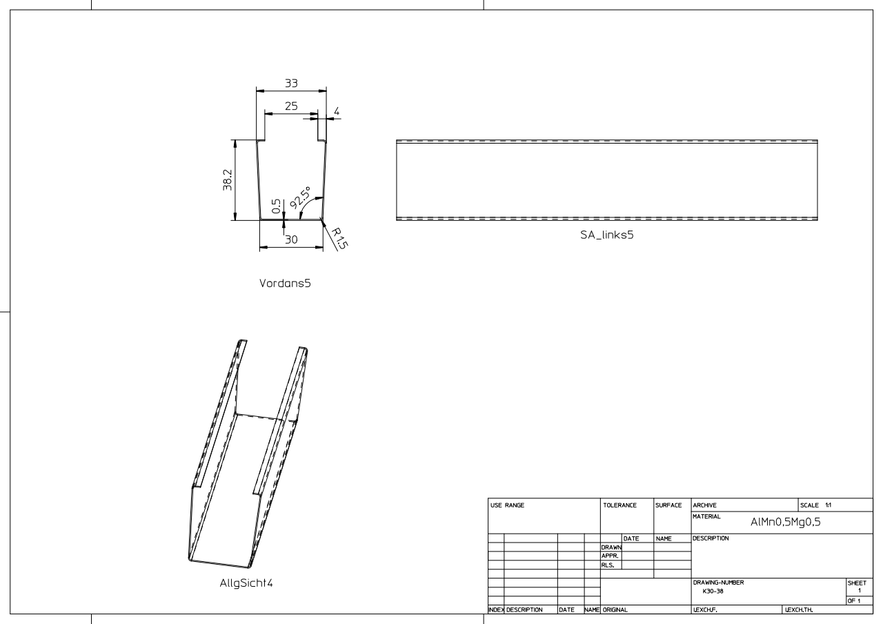
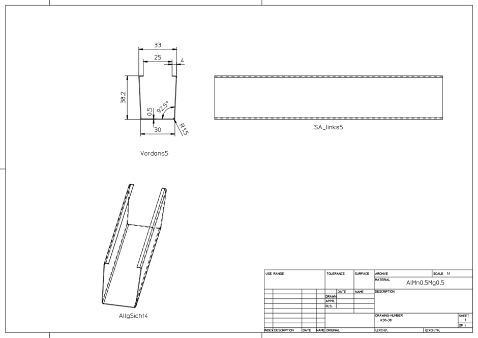
Zurück zu den abgehängten ORIGINAL DOBNER Aluminium-Paneeldecken mit offenen Fugen →→ Zurück zu den abgehängten ORIGINAL DOBNER Aluminium-Smart-Baffles 20-38 →→
Zurück zur ORIGINAL DOBNER Startseite →→