Zum Hauptinhalt springen
Menü
ORIGINAL DOBNER
Abgehängte Decken und vorgehängte Fassaden
ORIGINAL DOBNER METALLDECKEN
ÜBERSICHT DOBNER DECKENSYSTEME
ANWENDUNGS-BEISPIELE
PANEELDECKEN OFFENE FUGEN
PANEELDECKEN GESCHLOSSENE FUGEN
VERTIKAL-LAMELLENDECKEN
STAHL-SPORT-PANEELDECKEN
SMART-BAFFLES 30-38
MW BAFFLES
METALLDECKEN-ZUBEHÖR
UNTERNEHMENS-INFORMATION
DOBNER REFERENZLISTE
KONTAKT
PANEELDECKEN BILDER
PANEELDECKEN SCHALLABSORPTION
PANEELDECKEN MONTAGE-HINWEISE
PANEELDECKEN AUSSCHREIBUNGS-TEXTE
LAMELLENDECKEN ZUBEHÖR
SMART-BAFFLES AUSSCHREIBUNGS-TEXT
FLUGHAFEN DECKEN
BAHNHOF- U. METRO-DECKEN
PARKHAUS DECKEN
TANKSTELLEN DECKEN
SPORTHALLEN DECKEN
SCHWIMMBAD DECKEN
FLUR UND KORRIDOR DECKEN
PRODUKTIONSHALLEN DECKEN
EURACON ALUMINIUM FASSADEN
EURACON FASSADEN BILDERGALERIE
EURACON FS-300 SYSTEMBESCHREIBUNG
EURACON FS-300 FARBEN
EURACON FS-300 MONTAGE
IMPRESSUM
DATENSCHUTZERKLÄRUNG
ALLGEMEINE GESCHÄFTSBEDINGUNGEN
PRÜFUNGEN UND ZERTIFIKATE
Die DOBNER GUTWERT GmbH gehört zur Unternehmensgruppe
BRF FRIEDRICHSHAIN GmbH und ist Hersteller der abgehängten
ORIGINAL DOBNER Metalldecken
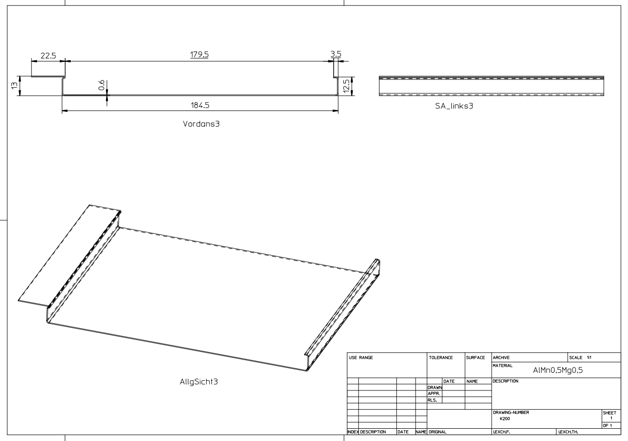
Abgehängte ORIGINAL DOBNER Aluminium-Paneeldecke Typ K-200 / KP-200
mit geschlossenen Fugen
ZURÜCK ZU ALUMINIUM
-PANEELDECKEN
MIT
GESCHLOSSENEN
FUGEN →→
Zurück zur ORIGINAL DOBNER Startseite →→